
Ort | Winterthur, Untere Gerberstrasse 3, ZH |
|---|---|
Auftragsart | Direktauftrag |
Auftraggeber | Privat |
Projektierung | 2022-2023 |
Realisierung |
2022-2023
|
Architektur | Dettling Architekturstudio |
Bauleitung |
Cyrill Dettling
|
Fotografien | Cyrill Dettling |

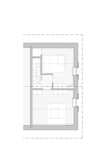
Das Eckhaus an der Unteren Gerberstrasse ist stark in die Jahre gekommen und kaum mehr bewohnbar. Eine behutsame Wohnraumerweiterung in Kombination mit einer Sanierung der Innenräume belebt das Haus neu.

Die Arbeitersiedlung aus dem Jahr 1872 gründet auf der Initiative des bekannten winterthurer Architekten Ernst Jung. Die ins Stadtgebiet eingebundene Häusergruppe sollte die Moral und Lebensweise der Arbeiter heben, indem die Wohnungen und Gärten klar voneinander abgetrennt sind und sich die Bewohner mit ihren Häusern identifizieren. Eine städtebauliche Besonderheit der Anlage liegt in der Erschliessung der Häuser durch die inneren Strassenzeilen und ist für die Siedlung identitätsbildend. Diese Merkmale bilden den Ausgangspunkt für die Entwurfsarbeit.




Ein neuer Anbau mit einem Entrée auf der Gartenseite schafft dringend benötigten Raum. Die Platzverhältnisse in den Häusern sind eng und entsprechen nicht mehr den heutigen Anforderungen ans Wohnen. Damit die Stellung des Hauptgebäudes weiterhin lesbar bleibt, beschränkt sich der Anbau auf die Hälfte der Parzellenbreite und kommt direkt auf der nachbarlichen Grenze zu stehen. Mit dieser Strategie können die Nachbarn dieselben Anbauten realisieren, während die Identität der Siedlung gewahrt bleibt.
















