
Ort | Geiselweidstrasse 21, Winterthur ZH |
|---|---|
Auftragsart | Direktauftrag |
Auftraggeber | Privat |
Projektierung | 2020-2021 |
Realisierung | 2021 |
Architektur | Orso Studio |
Bauleitung | Orso Studio |
Fotografien | Stephan Bösch |

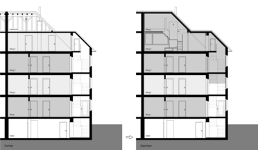
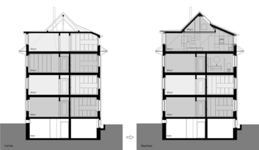
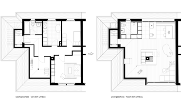
Die Bauherrschaft erwarb vor wenigen Jahren das kleine Mehrfamilienhaus an schöner Lage in der Nähe der Altstadt. Das Haus ist umgeben von jahrhundertealten Bäumen der Seidenstrasse und der gartenseitigen Parkanlage. Der Bauherrschaft beabsichtigte dereinst selbst das Haus zu bewohnen und einen Teil der Wohnung weiterhin zu vermieten. Dazu war es der Wunsch das 2. Obergeschoss und das Dachgeschoss zu ihrer Familienwohnung umzugestalten. Ursprünglich waren das 2. Obergeschoss, sowie das Dachgeschoss je eine eigene Wohnung.


Klare
Linien zeichnen Formen, die zusammen mit ihren Materialien und Farben,
atmosphärisch starke Räume bilden. Räume, die durch Licht und Schatten,
beständig aufs Neue entdeckt werden können.
So lässt sich die grundlegende Entwurfsidee des Projektes in knappen Worten
umschreiben.
Der Struktur des Hauses und dem Budget entsprechend entschieden wir uns, das 2. Obergeschoss in seiner Raumstruktur grösstenteils zu belassen und die privaten Schlafzimmer dort unterzubringen, während wir das verwinkelte und düstere Dachgeschoss von seiner Kammerung befreiten und zum offenen, luftigen Wohnraum umgestalteten. Der Dachraum lebt von seinen sich treffenden unterschiedlichen Schrägen. Diese Qualität hatte der Raum schon vor dem Umbau, war durch die Kammerung des Dachgeschosses jedoch nicht erlebbar und kaum spürbar. Wir legten diese Qualität frei und verstärkten ihre Wirkung, indem wir sämtliche Wand- und Deckenflächen, inkl. Dachstuhl in homogem, sanftem, glattem Weiss gestalteten. Um den zentralen, schräg durch den Raum verlaufenden Kamin im Dachgeschoss entwickelten wir ein Möbel, welches Raumgliederung, Stauraum, Sitzlandschaft sowie Treppe zur «Sternwarte» ist, von wo man wunderbar den Himmel beobachten kann. Das Möbel gestalteten wir analog zu Wänden und Decken in glattem, sanftem Weiss. Den Kontrast zu den weissen Flächen bildet der Boden in warmem Eichenholz, welcher auf der Sitzfläche und der Treppe weitergeführt wird und so den Boden zur Topografie werden lässt. Beim Blick aus den Fensterbändern im Dachgeschoss befindet man sich inmitten der Blätter der jahrhundertealten Bäume, wodurch ein Gefühl vom Wohnen im Baumhaus aufkommt.


































